Universidade Federal de Santa Maria

Ci. e Nat., Santa Maria, v. 47, e91578, 2025

DOI: 10.5902/2179460X91758

ISSN 2179-460X

Submitted: 04/26/2023 • Approved: 12/05/2023 • Published: 05/20/2025

1 INTRODUCTION

2 MATERIAL AND METHODS

3 RESULTS AND DISCUSSION

4 CONCLUSIONS

ACKNOWLEDGEMENTS

REFERENCES

Inovações e Soluções Sustentáveis em Engenharia Ambiental

Evaluation of bacterial activity in a structured bed reactor under different organic loading rates (OLR)

Avaliação da atividade bacteriana em um reator de leito estruturado sob diferentes taxas de carga orgânica (OLR)

Edgar Augusto AlibertiI

Camila Zoe CorreaI

Deize Dias LopesII

Kátia Valéria Marques Cardoso PratesI

I Universidade Tecnológica Federal do Paraná, Curitiba, PR, Brazil

II Universidade Estadual de Londrina, Londrina, PR, Brazil

ABSTRACT

This research aims to evaluate the bacterial activity response in a continuous upflow structured bed reactor for organic matter and nitrogen removal from dairy wastewater (with an initial concentration of 5,326 mg.L-1 of COD and 39 mg.L-1 of NH4+-N) under different organic loading rates (OLR). An acrylic bench-scale reactor with a total volume of 2.27 L and a working volume of 1.32 L was used and operated for 271 days. The reactor was operated in three experimental phases with different OLRs: Phase I - 1.2 kgCOD.m-3.d-1 (107 days); Phase II - 1.4 kgCOD.m-3.d-1 (94 days); and Phase III - 1.8 kgCOD.m-3.d-1 (70 days). During operation, COD removals above 90% were achieved in all phases. For nitrogen removal, the best results were obtained in Phase I, with average removals of TKN and total nitrogen (TN) of 81% and 74%, respectively. The increase in OLR affected nitrogen removal by directly interfering with the ammonification process. The ammonia-oxidizing bacteria (AOB) and nitrite-oxidizing bacteria (NOB) concentrations decreased with higher OLR. However, despite these results, no accumulation of oxidized nitrogen forms was observed, indicating that nitrification and denitrification occurred simultaneously. The structured bed reactor, operated with recirculation and intermittent aeration, proved effective for simultaneous organic matter and nitrogen removal, creating a stable and favorable environment for combined processes under different OLRs.

Keywords: Nitrification; Denitrification; Intermittent aeration

RESUMO

O objetivo desta pesquisa foi avaliar a resposta da atividade bacteriana em reator de leito estruturado, de fluxo contínuo e ascendente na remoção de matéria orgânica e nitrogênio de águas residuárias de laticínios (concentração bruta de 5.326 mg.L-1 de DQO e 39 mg.L-1 de N-NH4+) sob diferentes cargas orgânicas volumétricas (COV). Utilizou-se um reator construído em acrílico em escala de bancada com volume total de 2,27 L e útil de 1,32 L, sendo operado por 271 dias. O reator foi operado com três fases experimentais, com diferentes COV: Fase I - 1,2 kgDQO.m-3.d-1 (107 dias); Fase II - 1,4 kgDQO.m-3.d-1 (94 dias) e Fase III - 1,8 kgDQO.m-3.d-1 (70 dias). Durante a operação obteve-se remoções de DQOT acima de 90% em todas as Fases. Já em relação a remoção de nitrogênio, os melhores resultados foram obtidos na Fase I, com remoção média de NTK e NT de 81 e 74%, respectivamente. O aumento da COV influenciou a remoção de nitrogênio por interferir diretamente no processo de amonificação. As concentrações das Bactérias Oxidantes de Amônia (BOA) e Bactérias Oxidadoras de Nitrito (BON) sofreram redução com o aumento da COV. Entretanto, mesmo com esse resultado, não houve acúmulo de formas oxidadas de nitrogênio, indicando que a nitrificação e a desnitrificação ocorreram simultaneamente. O reator de leito estruturado, operado com recirculação e aeração intermitente, mostrou-se eficaz na remoção simultânea de matéria orgânica e nitrogênio, criando um ambiente estável e favorável para processos combinados sob diferentes COVs.

Palavras-chave: Nitrificação; Desnitrificação; Aeração intermitente

1 INTRODUCTION

Brazil is a leading country in the global dairy production and processing industry. In 2021, according to data published by the Brazilian Institute of Geography and Statistics (IBGE) (2022), milk production was estimated at 35.30 billion liters. Dairy production generates a significant amount of wastewater, primarily due to the need for washing and sanitizing facilities, as well as the various stages involved in product processing (Martínez-Suller et al., 2010). Consequently, the physical and chemical properties of these effluents vary depending on the type and quantity of products manufactured (Gough et al., 2000; Martínez-Suller et al., 2010), as well as the chemicals used in cleaning and disinfection (Martínez-Suller et al., 2010; Kushwaha et al., 2011). It is estimated that effluent production in this industrial sector ranges from 0.2 to 10 liters per liter of processed milk (Kushwaha et al., 2011).

Moreover, as most agroindustries, the dairy industry produces effluents characterized by high biochemical oxygen demand (BOD) and chemical oxygen demand (COD), reflecting their high organic content, variable pH, and high nutrient loads, especially nitrogen in various forms. These effluents also contain suspended and dissolved solids, soluble organic components, lactose, fats, sulfates, and chlorides (Yonar et al., 2018). Given this situation, it is essential to explore alternatives for treating this wastewater, to ensure compliance with legal requirements.

According to research results from, Barana et al. (2013), Wosiack et al. (2015), and Correa et al. (2023), the laboratory-scale structured bed reactor, operated with intermittent aeration and effluent recirculation, achieved good results when used for wastewater treatment, showing high potential for the organic matter and nitrogen removal in a single reactor. In this context, this research aimed to analyze the bacterial activity response in a structured bed reactor subjected to different organic loading rates (OLR).

2 Materials and Methods

The wastewater used in this research was collected from a dairy factory located in the northern region of Paraná State, Brazil. This company produces a variety of products, including dairy beverages, cream, yogurt, pasteurized milk, powdered milk, whole milk, and dairy compounds.

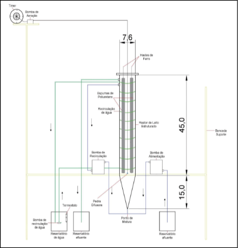
The treatment system consisted of an acrylic reactor with a fixed support material, with a total volume of 2.27 L, a useful volume of 1.32 L, a sludge volume of 0.20 L, and 0.75 L of support material. The reactor had an internal diameter of 7.6 cm and a total height of 60 cm. The support material consisted of polyurethane foams cut into cylindrical shapes, approximately 1.5 cm in diameter and 48 cm in height, which were fixed to iron rods attached to the top of the reactor.

The reactor was continuously fed using a positive displacement pump (ProMinent model GALA). Effluent recirculation was achieved with a similar pump, with a recirculation flow rate of 3 times the inlet flow rate (Qr = 3Qe). Aeration was provided by an air pump with two outlets (Panther II), delivering a total airflow of approximately 6 L.min-1 and a power of 3.5 W. The experimental setup is illustrated in Figure 01.

The reactor temperature was maintained at 28°C using a thermostat (ROXIN) with a water recirculation system around the reactor. This temperature maintenance aimed to provide optimal conditions for microbial growth and activity, thereby improving treatment efficiency.

Figure 1 – Treatment system used in the experimental procedures

Source: Authors (2024)

The study was conducted in three experimental phases defined by varying organic loading rates (OLR) applied to the treatment system: Phase I – OLR of 1.2 kgCOD.m-3.d-1 (operation time: 107 days); Phase II – OLR of 1.4 kgCOD.m-3.d-1 (operation time: 94 days); and Phase III – OLR of 1.8 kgCOD.m-3.d-1 (operation time: 70 days). The OLRs were adjusted when system stability was achieved (organic matter removal results with less than 10% deviation).

Throughout all the phases, the system operated with intermittent aeration (IA) with cycles of 3 hours (2 hours with aeration on (AE) and 1 hour with aeration off (NA)) and a hydraulic retention time (HRT) of 16 hours. These parameters were based on the studies of Moura et al. (2012) and Correa et al. (2023).

The efficiency of the treatment system was monitored through physical and chemical analyses of the influent and effluent of the reactor (Chart 1). Analyses were conducted following the procedures described in the Standard Methods for the Examination of Water and Wastewater (APHA, 2012).

Chart 1 – Parameters and Frequencies for Reactor Monitoring

Parameter

Abbreviation/Unit

Weekly Frequency

Method

Number

Hydrogen Ion Potential

pH

3

Potentiometric

4500-H+ B

Alkalinity

Alkalinity (mgCaCO3.L-1)

3

Titrimetric

2320 B

Chemical Oxygen Demand

COD

3

Colorimetric

5220 D

Total Kjeldahl Nitrogen

TKN

1

Kjeldahl

4500-Norg/4500-NH3 C

Ammoniacal Nitrogen

NH4+-N (mg.L-1)

2

Titrimetric

4500-NH3 B/C

Nitrite (effluent)

NO2--N (mg.L-1)

2

Colorimetric (FIA)

4500-NO2^- B

Nitrate (effluent)

NO3--N (mg.L-1)

2

Colorimetric (FIA)

4500-NO3^-

Source: Authors (2024)

For the pH, alkalinity, nitrogen, and organic matter data, to verify if there was a statistical difference between the results, an analysis was conducted using OriginPro 8 software, using the ANOVA (one-way) hypothesis test with a decision level of α = 0.05 (p-value <0.05).

Microbiological analyses were performed at the beginning and end of each experimental phase to quantify the bacteria present in the effluent (EF), support material (SM), and sludge (SD). Analyses were conducted to determine the ammonia-oxidizing bacteria (AOB) and nitrite-oxidizing bacteria (NOB) concentrations, as well as denitrifying and heterotrophic bacteria. For nitrifying bacteria (AOB and NOB) and denitrifying bacteria, quantification was performed using the Most Probable Number (MPN.100 mL-1) technique, while heterotrophic bacteria were determined using the Standard Plate Count (SPC) method. Additionally, quantitative analyses of the biomass adhered to the SM were carried out by determining the concentration of volatile solids adhered (VSA). Sample preparation (EF, SM, and SD) was performed according to the procedures described by Correa et al. (2018).

To determine the Most Probable Number (MPN.100 mL-1) of AOB and NOB, the methodology of Schmidt & Belser (1984), adapted by Mendonça (2002), was used. To quantify the MPN.100mL-1 of denitrifying bacteria, the methodology of Tiedje (1984), as described by Mendonça (2002), was utilized. To determine the heterotrophic bacteria, the SPC methodology described by Silva Filho and Oliveira (2004) was used. The culture medium employed for this analysis was Plate Count Agar (Merck) (PCA), and the preparation follows the manufacturer’s specifications. Each prepared Petri dish contains approximately 20 mL of solid culture medium.

Microscopic examination was carried out on the sludge and support material at the end of each operational phase using scanning electron microscopy (SEM). This analysis was conducted at the Scanning Electron Microscopy and Microanalysis Laboratory of the State University of Londrina using a scanning electron microscope (FEI Quanta 200), following the methodology described by Correa et al. (2018).

3 Results and Discussion

Table 01 shows the results of pH and alkalinity in the studied phases.

The results indicate an increase in pH and alkalinity in the effluent. This outcome is likely associated with the ammonification and denitrification processes in the reactor. For every 1 mg of NO3--N denitrified, 3.57 mg CaCO3.L-1 is generated, and similarly, for every 1 mg of organic nitrogen ammonified, 3.57 mg CaCO3.L-1 is generated.

Table 1 – Means and standard deviations of pH and alkalinity of influent and effluent during the reactor operation in the three evaluated phases

Phase

pH

Alkalinity

Influent

Effluent

Influent

Effluent

I

6.97±1.14ª

8.51±0.53ª

277±124ª

320±73ªb

II

6.15±0.91b

8.23±0.26ab

212±136ª

365±92ª

III

5.89±0.76b

7.95±0.74b

71±40b

278±75b

Note: Identical letters = statistically similar values; Different letters = statistically different values at the 5% level.

Source: Authors (2024)

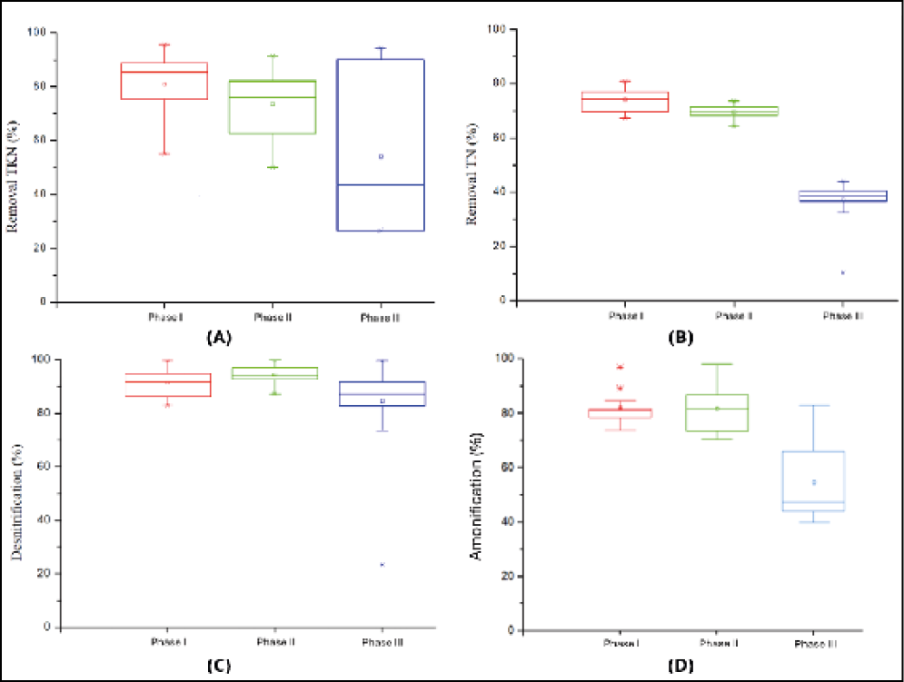
The result found in this research was similar to that reported by Moura et al. (2018) and Silva (2018). Both studies used structured bed reactors under intermittent aeration conditions and associated this result with the nitrogen removal process in the reactor. Table 2 presents the nitrogen series data, and Figure 2 shows the graph of the percentage removal of TKN, Total Nitrogen (TN), nitrification efficiency, and ammonification in each phase studied.

Table 2 – Average Concentrations of Influent and Effluent Nitrogen

Phase

TKN

N-NH4+

N-NO2-

N-NO3-

COD/TKN Ratio Effluent

Influent

Effluent

Effluent

Effluent

Effluent

mg.L-1

I

35.9±15.5ª

6.8±4.1ª

3.7±3.2ª

1.3±2.6ª

0.7±0.8ª

1.7±1.3ª

II

56.2±17.7ª

14.8±6.8ª

2.1±1.6ª

5.1±4.3ab

0.7±0.5ª

1.5±1.1ª

III

57.1±9.3ª

31.9±22.0b

1.8±1.8ª

7.1±7.7b

1.0±1.9ª

3.0±2.2b

Note: Identical letters = statistically similar values; Different letters = statistically different values at the 5% level. Source: Authors (2024)

The highest removal efficiencies of TKN (81±11%) and TN (74±4%) were achieved in Phase I. Regarding denitrification, there was no significant difference between the percentages obtained in Phase I (92±5%) and Phase II (95±3%), indicating that the increase in volumetric organic load (VOL) from 1.2 to 1.4 kg COD.m³.d-¹ did not negatively affect the activity of denitrifying bacteria. However, when the VOL was increased to 1.8 kg COD.m³.d-¹ (Phase III), the average denitrification efficiency decreased to 85±15%.

Figure 2 – Box-plot Graph Related to the Efficiency of TKN Removal (A), TN (B), Denitrification (C), and Ammonification (D) During Phases I, II, and III of Reactor Operation

Source: Authors (2024)

Based on the nitrogen series data (Table 02) and the efficiencies of denitrification, ammonification, and TKN and TN removal (Figure 02), it can be concluded that the VOL of 1.8 kg COD.m³.d-¹ (Phase III) directly affected the activity of the microorganisms responsible for nitrogen removal in the reactor via the conventional pathway.

Liu et al. (2010) observed that increasing the influent COD load reduces nitrification efficiency, mainly due to competition for Dissolved Oxygen (DO) between heterotrophic and nitrifying bacteria. Hui et al. (2019) reported that with the addition of carbon (increased C/N ratio), there was an increase in cell growth, but a reduction in the release of N-NH4+.

Table 03 presents the results for COD (influent and effluent) along with their respective removal percentages.

Table 3 – Means and standard deviations of total COD (CODT) and filtered COD (CODF) in the influent and effluent of the reactor

Phase

CODT

CODF

Removal Efficiency

Influent

Effluent

Influent

Effluent

CODT

CODF

mg.L-1

%

I

800±126ª

59±40ª

436±197ª

29±18ª

92±6ª

91±8ª

II

921±96b

87±59ab

473±142ª

22±12ª

90±6ª

95±3ª

III

1.175±78c

123±104b

876±126b

41±12b

90±9ª

96±1ª

Note: Identical letters = statistically similar values; Different letters = statistically different values at the 5% level.

Source: Authors (2024)

It can be observed that the increase in organic loading rates (OLR) did not negatively affect the organic matter removal in the reactor. According to Liu et al. (2010), heterotrophic organisms have their metabolic activity stimulated by the increase in chemical oxygen demand (COD) load and oxygen availability. Varying the volumetric organic load applied to the system (1.0, 1.6, and 3.6 kg COD.m³.d-¹), Silva (2018) achieved COD removal efficiencies above 94% in an anaerobic-aerobic fixed-bed reactor (RAALF) treating slaughterhouse effluents, which corroborates the COD removal results of the present work as the efficiencies were very close, showing that the increase in OLR does not interfere with the organic matter removal.

The COD results were statistically similar for all phases, the same occurred for filtered COD (FCOD). However, Phase I presented the highest average removal efficiency for total COD (TCOD) and the lowest for FCOD, while Phases II and III had similar average values for TCOD. For FCOD, Phase III showed higher removal. The results related to the Most Probable Number (MPN) of ammonia-oxidizing bacteria (AOB) and nitrite-oxidizing bacteria (NOB) present in the analyzed media, at the beginning and end of the studied phases, are presented in Figure 3.

Figure 3 – Bar graph of the initial and final Most Probable Number (MPN) of ammonia-oxidizing bacteria (AOB) (A) and nitrite-oxidizing bacteria (NOB) (B) present in the effluent (EF), support material (SM), and sludge (SL) throughout each studied phase

Source: Authors (2024)

In the SM and SL, the MPN.100 mL-1 of AOB and NOB decreased as the load increased. In the EF, however, the MPN.100 mL-1 of AOB decreased from Phase I (7.1x109 ± 9.8x109) to Phase II (7.6x107 ± 9.1x107), then increased in Phase III (1.8x108 ± 2.4x108). NOB increased from Phase I (8.5x109 ± 1.2x1010) to Phase II (8.0x1010 ± 1.1x1011), but decreased from Phase II to Phase III (1.8x106 ± 2.5x106), confirming the hypothesis raised about the competition between nitrifying and heterotrophic bacteria, as highlighted by Liu et al. (2010).

The increase in AOB and NOB concentration in the EF may have occurred due to the detachment of microorganisms adhered to the SM, subsequently becoming free in the EF when subjected to an increased load. The load increase negatively impacts the bacteria present in the support material and sludge (flocs), causing them to detach and become mobile in the system. This can be explained by the turbulence caused by airflow to maintain high OD concentration in the medium (EF) or by the reduction of OD in the others (SM and SL). Ødegaard et al. (2004) described that the turbulence due to high airflow in aerobic reactors operated with high organic loads to maintain an oxygen concentration around 3 mgO2.L-1 is responsible for keeping biofilms thin, preventing excessive biomass accumulation on the support material.

Although these organisms are present in the medium, the likelihood of them being carried through the system increases when they are no longer adhered or fixed to the flocs, which negatively impacts nitrogen removal results. The microbiological results align with the physicochemical data obtained during the analyzed phases. In Phase I, which showed the best removal efficiencies for TKN and TN, the highest MPN.100 mL-1 of nitrifying bacteria was also observed. As nitrogen removal efficiencies decreased in Phases II and III, the MPN.100 mL-1 data show that the AOB also decreased, indicating that these microorganisms are influenced by the OLR, reducing their activities. However, in the case of the NOB, despite a reduction in their concentration, there was no significant decrease in nitrite oxidation rates.

The influent COD/TKN ratio likely contributed to the reduced activity of nitrifying bacteria by favoring the development of microorganisms such as filamentous fungi in the system. From the SEM performed on the support material and sludge throughout the operational phases, an increase in the prevalence of these microorganisms, which are favored by higher C/N ratios, was observed. According to Zhang and Elser (2017), the uncontrolled growth of filamentous fungi is a concern, mainly because they have lower nutrient requirements compared to bacteria. According to Mille-Lindblom et al. (2006), fungi compete with bacteria and can reduce their abundance in the microbial community. Chiu et al. (2007) noted that the higher the C/N ratio, the lower the nitrification rate, as the environment becomes more favorable for heterotrophic organisms, reinforcing the hypotheses raised.

Figure 4 presents the MPN.100 mL-1 results for denitrifying bacteria in the analyzed media at the beginning and end of the experimental phases, and Figure 5 shows the CFU.mL-1 results for heterotrophic bacteria.

In Phase I, the nitrifying bacteria were favored, whereas in Phase II, the denitrifying bacteria were more prominent. Comparing the data from Figure 02 with those presented in Figure 04, it is clear that Phase II achieved the highest denitrification efficiency. Despite the variations observed in the concentrations of nitrifying and denitrifying microorganisms, it is important to note that throughout the operational time of the reactor, there was no accumulation of oxidized nitrogen forms, indicating that both nitrification and denitrification processes occurred simultaneously in the reactor.

Figure 4 – MPN.100 mL-1 of denitrifying bacteria present in the effluent (EF), support material (SM), and sludge (SL) at the beginning and end of each studied phase

Source: Authors (2024)

Figure 5 – Colony-Forming Units (CFU) of heterotrophic bacteria present in the effluent (EF), support material (SM), and sludge (SL) at the beginning and end of each studied phase

Source: Authors (2024)

From the results of CFU.mL-1 for heterotrophic bacteria (Figure 05), it was observed that from the beginning to the end of Phase I, with an OLR of 1.2 kg COD.m³.d-¹, the concentration of heterotrophic bacteria decreased in the EF and SM, with an increase only in the sludge (LD). The same trend was observed for the MPN of denitrifying bacteria.

From the beginning to the end of Phase II, there was an increase in the CFU of heterotrophic bacteria in the EF and LD, while a decrease was noted in the SM. Analyzing the results for nitrifying bacteria (Figure 03) and those presented in Figure 05, it is clear that when heterotrophic bacteria increased, nitrifying bacteria decreased. This result suggests that competition may have occurred between them. According to Fu et al. (2010), competition for dissolved oxygen (DO) among these bacteria results in stratification within the aerobic zone of the biofilm, with heterotrophic bacteria growing in the outer regions and nitrifying bacteria residing in the inner regions. This is a probable explanation for the high removal efficiencies of CODT and CODF observed.

Microscopy performed on the media (Figure 06) throughout the phases revealed a high quantity of microorganisms adhered to the support material. Many rod-shaped bacteria (Figure 06A), ciliates similar to Euplotes sp. (Figure 06B), ciliates similar to Vorticella sp. (Figure 06C), and cocci bacteria (Figure 06E) were observed. The presence of these ciliates indicates a high sludge age and good operational stability (Hoffmann, 2004).

From Phase I to III, a reduction in microorganism richness and diversity was noted, with a predominance of fungi (Figure 06F) in both the SM and LD. Protozoa similar to Epistyllis were also present, which may indicate an overload of organic matter (Hoffmann, 2004).

Figure 6 – Scanning Electron Microscopy (SEM) images of the Support Material (SM)

Caption: (A) Bacillus-type bacteria; (B) Free ciliate similar to Euplotes sp.; (C) Ciliate similar to Vorticella sp.; (D) Microorganisms inside the SM; (E) Coccus-type bacteria; (F) External surface of the support material with the presence of filamentous fungi.

Source: Authors (2024)

4 ConCLusions

The structured bed reactor used for the dairy wastewater treatment demonstrated satisfactory performance in terms of organic matter removal. In all three operational phases, the system achieved average efficiencies of over 90% and 91% for COD removal, respectively, indicating that the reactor responded well to the variation in OLR from 1.2 to 1.8 kgCOD.m-3day-1.

Regarding nitrogen, despite the removal efficiency of TKN ranging from 81±11% (Phase I) to 54±31% (Phase III), total nitrogen (TN) was not effectively removed due to the interference of increased OLR on the activity of ammonifying bacteria, particularly in Phase III (OLR of 1.8 kgCOD.m-3day-1).

Microbiological analyses confirmed that higher OLRs did indeed affect the concentration of nitrifying bacteria. Additionally, scanning electron microscopy confirmed a reduction in microorganism abundance as OLR increased, with a predominance of fungi.

Based on the results, it can be concluded that the structured bed reactor operated under intermittent aeration with effluent recirculation was effective in the simultaneous removal of organic matter and nitrogen from dairy wastewater up to an OLR of 1.4 kgCOD.m-3day-1.

acknowledgements

The authors would like to thank the Coordination for the Improvement of Higher Education Personnel (CAPES) and the State University of Londrina and Federal Technological University of Paraná for the support received.

REFEReNCeS

American Public Health Association (APHA), American Water Works Association (AWWA), & Water Environment Federation (WEF). (2012). Standard methods for the examination of water and wastewater (22nd ed.). Washington, DC: APHA

Barana, A. C., Lopes, D. D., Martins, T. H., Pozzi, E., Damianovic, M. H. R. Z., Del Nery, V., & Foresti, E. (2013). Nitrogen and organic matter removal in an intermittently aerated fixed-bed reactor for post-treatment of anaerobic effluent from a slaughterhouse wastewater treatment plant. Journal of Environmental Chemical Engineering, 1(3), 453-459. doi: 10.1016/j.jece.2013.06.015.

Begnini, B. C., & Ribeiro, H. B. (2014). Plano para redução de carga poluidora em indústria de lacticínios. Saúde e Meio Ambiente: Revista Interdisciplinar, 3(1), 19-30.

Centro de Estudos Avançados em Economia Aplicada - ESALQ/USP - CEPEA. (2018). Boletim do Leite. Piracicaba. Ano 24 nº 272.

Chiu, Y. C., Lee, L. L., Chang, C. N., & Chao, A. C. (2007). Control of carbon and ammonium ratio for simultaneous nitrification and denitrification in a sequencing batch bioreactor. International Biodeterioration & Biodegradation, 59(1), 1-7. doi: 10.1016/j.ibiod.2006.08.001

Correa, C. Z., Prates, K. V. M. C., De Oliveira, E. F., Lopes, D. D., & Barana, A. C. (2018). Nitrification/denitrification of real municipal wastewater in an intermittently aerated structured bed reactor. Journal of Water Process Engineering, 23, 134-141. doi: 10.1016/j.jwpe.2018.03.013

Correa, .Z., de Tavares Machado Bolonhesi, I.B., Lopes, D.D. et al. (2023). Removal of organic matter and nitrogen from dairy effluents in a structured bed reactor operated with intermittent aeration. Environ Sci Pollut Res 30, 91060–91073 (2023). https://doi.org/10.1007/s11356-023-28581-y

Fu, B., Liao, X., Ding, L., & Ren, H. (2010). Characterization of microbial community in an aerobic moving bed biofilm reactor applied for simultaneous nitrification and denitrification. World Journal of Microbiology and Biotechnology, 26(11), 1981–1990. doi: 10.1007/s11274-010-0382-y.

Gough, R. H., Samkutty, P. J., Mcgrew, P., Arauz, J., & Adkinson, R. W. (2000). Prediction of effluent biochemical oxygen demand in a dairy plant SBR wastewater system. Journal of Environmental Science & Health Part A, 35(2), 169-175. doi: 10.1080/10934520009376961

Hoffmann, H. (2004). Caracterização do funcionamento de ETE do tipo lodo ativado via imagem microscópica–estudo na Região da Grande Florianópolis. XI Simpósio Luso-Brasileiro de Engenharia Sanitária e Ambiental–SILUBESA. Anais, ABES, Natal.

Hui, C., Wei, R., Jiang, H., Zhao, Y., & Xu, L. (2019). Characterization of the ammonification, the relevant protease production and activity in a high-efficiency ammonifier Bacillus amyloliquefaciens DT. International Biodeterioration & Biodegradation, 142, 11-17. doi: 10.1016/j.ibiod.2019.04.009

IBGE, Instituto Brasileiro de Geografia e Estatística. (2022). Available at: https://biblioteca.ibge.gov.br/visualizacao/periodicos/84/ppm_2017_v45_br_informativo.pdf. Accessed on April 29, 2023.

Kushwaha, J. P., Srivastava, V. C., & Mall, I. D. (2011). An overview of various technologies for the treatment of dairy wastewaters. Critical Reviews in Food Science and Nutrition, 51(5), 442-452. doi: 10.1080/10408391003663879

Liu, Y., Shi, H., Xia, L., Shi, H., Shen, T., Wang, Z., Wang, G., & Wang, Y. (2010). Study of operational conditions of simultaneous nitrification and denitrification in a Carrousel oxidation ditch for domestic wastewater treatment. Bioresource Technology, 101(3), 901–906. doi: 10.1016/j.biortech.2009.09.015

Martínez-Suller, L., Provolo, G., Carton, O. T., Brennan, D., Kirwan, L., & Richards, K. G. (2010). The composition of dirty water on dairy farms in Ireland. Irish Journal of Agricultural and Food Research, 67-80.

Mendonça, L. C. (2002). Microbiologia e cinética de sistema de lodos ativados como pós-tratamento de efluente de reator anaeróbio de leito expandido (Tese de doutorado, Escola de Engenharia de São Carlos, Universidade de São Paulo, São Carlos).

Mille-Lindblom, C., Fischer, H., & Tranvik, L. J. (2006). Antagonism between bacteria and fungi: substrate competition and a possible tradeoff between fungal growth and tolerance towards bacteria. Oikos, 113(2), 233-242. doi: 10.1111/j.2006.0030-1299.14337.x.

Moura, R. B., Damianovic, M. H., & Foresti, E. (2012). Nitrogen and carbon removal from synthetic wastewater in a vertical structured-bed reactor under intermittent aeration. Journal of Environmental Management, 98, 163-167. doi: 10.1016/j.jenvman.2012.01.009

Ødegaard, H., Rusten, B., & Wessman, F. (2004). State of the art in Europe of the moving bed biofilm reactor (MBBR) process. In Proceedings of the 77th Annual Water Environment Federation Technical Exposition and Conference, New Orleans, Louisiana (pp. 2-6).

Schmidt, E. L., & Belser, L. W. (1984). Nitrifying bacteria. In Methods of Soil Analysis – Chemical and Microbiological Properties. Wisconsin, Estados Unidos.

Silva, N. T. M. (2018). Remoção de carbono e nitrogênio de efluente de matadouro em reator anaeróbio-aeróbio de leito fixo (Dissertação de mestrado, Universidade Federal de Pernambuco, Caruaru).

Silva Filho, G. N., & Oliveira, V. L. (2004). Microbiologia: manual de aulas práticas. Ed. da UFSC.

Tiedje, J. (1984). Denitrification. In Methods of Soil Analysis – Chemical and Microbiological Properties. Wisconsin, Estados Unidos.

Wosiack, P. A., Lopes, D. D., Damianovic, M. H. R. Z., Foresti, E., Granato, D., & Barana, A. C. (2015). Removal of COD and nitrogen from animal food plant wastewater in an intermittently-aerated structured-bed reactor. Journal of Environmental Management, 154, 145-150. doi: 10.1016/j.jenvman.2015.02.026

Yonar, T., Sivrioğlu, Ö., & Özengin, N. (2018). Physico-Chemical Treatment of Dairy Industry Wastewaters: A Review. In Technological Approaches for Novel Applications in Dairy Processing (pp. 179).

Zhang, J., & Elser, J. J. (2017). Carbon: nitrogen: phosphorus stoichiometry in fungi: a meta-analysis. Frontiers in Microbiology, 8, 1281. doi: 10.3389/fmicb.2017.01281

Authorship contributions

1 – Edgar Augusto Aliberti

Master in Environmental Engineering

https://orcid.org/0000-0001-7027-2990 - edgaraliberti@alunos.utfpr.edu.br

Contribution: Writing - original draft

2 – Camila Zoe Correa

PhD in Civil Engineer

https://orcid.org/0009-0008-9673-5410 - camila.z.correa@gmail.com

Contribution: RReview & editing

3 – Deize Dias Lopes

PhD in Hydraulics and Sanitation

https://orcid.org/0000-0002-1938-5911 - dilopes@uel.br

Contribution: Review & editing

4 – Kátia Valéria Marques Cardoso Prates

Postdoctoral Researcher at Federal University of Paraná

https://orcid.org/0000-0002-6134-1509 - kprates@professores.utfpr.edu.br

Contribution: Review & editing

How to quote this article

Aliberti, E. A., Correa, C. Z., Lopes, D. D., & rates, K. V. M. C. (2025). Evaluation of bacterial activity in a structured bed reactor under different organic loading rates (OLR). Ciência e Natura, Santa Maria, v. 47, spe. 2, e91758. DOI: https://doi.org/10.5902/2179460X91758.